Building Division office hours are 8:00 AM to 5:00 PM, open primarily Tuesdays through Fridays, with limited service on Mondays.
The City of Ceres offers a streamlining process for Accessory Dwelling Units (ADUs). Five distinct sets of ADU building plans are available upon submitting an application for a building permit. See below for details on each of the five options:
Name
| Square Feet
| Max Dimensions
| Layout
|
260 Studio
| 260 sf
| 20' x 13'
| Studio
|
562 Serenity
| 562 sf
| 23' 8" x 35'
| 1-bedroom
|
744 Comodo
| 744 sf
| 29' x 31'
| 1-bedroom
|
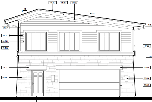
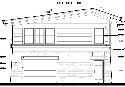
798 Trek
| 798 sf
| 30' x 30'
| 1-bedroom, above garage
|
896 Double
| 896 sf
| 28' x 38'
| 2-bedroom
|
"260 Studio" - Download Plans

"562 Serenity" - Download Plans

"744 Comodo" - Download Plans


"798 Trek" - Download Plans

"896 Double" - Download Plans
